Desain & Analisis Struktur

Sebagai konsultan teknik sipil, kami menyediakan layanan desain dan analisis struktur untuk berbagai jenis bangunan seperti gedung komersial, fasilitas industri, hingga infrastruktur. Proses perencanaan ini bertujuan untuk memastikan bahwa struktur bangunan memiliki tingkat keamanan, stabilitas, dan efisiensi yang optimal sesuai dengan standar teknik yang berlaku.

Dalam setiap proyek, tim konsultan teknik sipil kami melakukan analisis struktur secara menyeluruh dengan mempertimbangkan berbagai faktor beban seperti beban mati, beban hidup, beban angin, serta beban gempa. Melalui metode perhitungan teknik dan penggunaan perangkat lunak analisis struktur, setiap elemen bangunan dirancang agar mampu bekerja secara efektif dan aman.

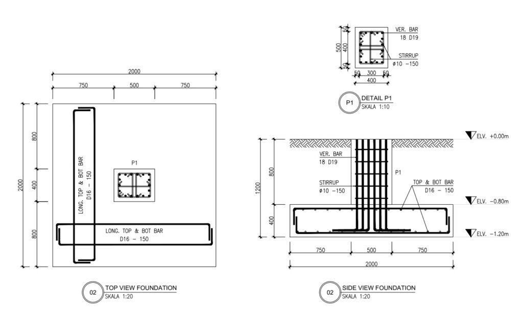
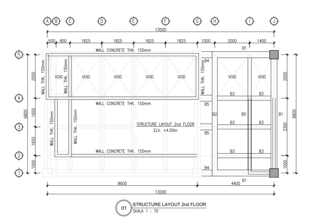
Layanan desain struktur bangunan yang kami kerjakan meliputi perencanaan fondasi, kolom, balok, pelat, hingga sistem struktur secara keseluruhan. Selain memperhatikan kekuatan dan keamanan struktur, kami juga mengoptimalkan penggunaan material serta mempertimbangkan kemudahan proses konstruksi di lapangan.

Dengan pengalaman dalam berbagai proyek perencanaan dan analisis struktur bangunan, kami berkomitmen memberikan solusi desain yang efisien, aman, dan sesuai kebutuhan klien. Pendekatan rekayasa yang kami terapkan bertujuan untuk menghasilkan struktur yang tidak hanya memenuhi standar teknis, tetapi juga memiliki kinerja yang andal dalam jangka panjang.

Berikut beberapa proyek kami:

1. Desain Struktur Gedung Sekolah SDIT Insan Kamil Depok – Depok, Jabar

2. Desain Struktur Gedung Bank BTN KC Kupang – Kota Kupang, Nusa Tenggara Timur

3. Desain dan Audit Struktur Gedung Sekolah SMP Nadwah Yayasan Ma’had Ummul Qura Al Islam – Sukabumi, Jawa Barat

4. Desain Struktur LED Videotrone Curve L Tower MRT Istora Mandiri – Kebayoran Baru, Jakarta Selatan

5. Desain Dinding Penahan Tanah Tower PLN Narogong – Bogor, Jawa Barat

6. Analisis Mounting Antena Tower XL

7. Desain dan Analisis Struktur Ramp Rumah Sakit Kartika Cibadak – Kabupaten Sukabumi, Jawa Barat

8. Desain Struktur Hotel Richroom Jakarta – DKI Jakarta

9. Desain dan Analisis Struktur Kolam Renang Rumah Tinggal Bapak Suhermanto – Cilandak, Jakarta Selatan

10. Desain dan Analisis Struktur Hotel Villa A.R Bali – Kuta Selatan Badung, Bali

11. Desain Struktur Masjid Al Kastoeri – Pekanbaru, Riau

12. Desain Struktur Heliport Pulau Cina – Kepulauan Seribu, DKI Jakarta

13. PLN Tower Emergency Analysis – Bogor, Jawa Barat

Leave a Reply

Your email address will not be published. Required fields are marked *