Geotechnical Engineering

Kami berkomitmen memberikan layanan rekayasa yang mengutamakan keamanan struktur, efisiensi desain, dan kepatuhan standar teknik.

Projects

#KonsultanTeknikSipil 

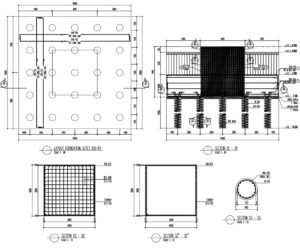
A) Analisis dan Desain Pondasi Tower SUTET 500 kV Cibinong-Muara Tawar – Bogor, Jawa Barat

  • Nama Proyek : Analisis Pondasi Tower SUTET 500 kV Cibinong-Muara Tawar
  • Lokasi : Bogor, Jawa Barat
  • Penyelesaian : Tahun 2023
  • Project : Analisis Pondasi dan dinding penahan tanah
  • Jumlah Lantai : 1 Lantai
  • Material Konstruksi : Beton Bertulang & Baja Struktural