WhatsApp
08132865264
Alamat
Desa Garon, RT.004 / RW.002, Kecamatan Kawedanan, Kabupaten Magetan, Jawa Timur – 63382

Sebagai konsultan teknik sipil, kami menyediakan layanan desain dan analisis jembatan untuk berbagai kebutuhan infrastruktur, mulai dari jembatan akses kawasan industri, jembatan penghubung antar wilayah, hingga jembatan pada fasilitas komersial dan logistik. Perencanaan jembatan dilakukan secara komprehensif untuk memastikan struktur mampu berfungsi dengan aman, stabil, dan tahan terhadap berbagai kondisi beban serta lingkungan.
Dalam proses analisis struktur jembatan, tim konsultan teknik sipil kami mempertimbangkan berbagai faktor teknis seperti beban kendaraan, beban dinamis, kondisi tanah, serta pengaruh lingkungan seperti angin dan gempa. Melalui metode perhitungan teknik dan pemodelan struktur menggunakan perangkat lunak rekayasa, setiap elemen jembatan dirancang agar memiliki kapasitas dan performa struktur yang optimal.
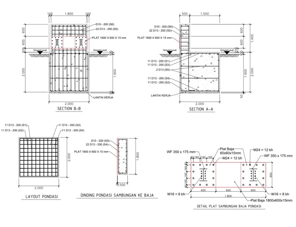
Layanan desain jembatan yang kami kerjakan meliputi perencanaan sistem struktur utama, desain elemen seperti girder, pier, abutment, dan fondasi, hingga penyusunan gambar kerja serta dokumen teknis. Perencanaan juga mempertimbangkan efisiensi konstruksi, kemudahan pelaksanaan di lapangan, serta ketahanan struktur dalam jangka panjang.
Dengan pengalaman dalam berbagai proyek infrastruktur, tim konsultan teknik sipil kami berkomitmen menghasilkan desain jembatan yang aman, efisien, dan sesuai dengan standar teknik yang berlaku. Pendekatan rekayasa yang kami terapkan bertujuan untuk memastikan jembatan dapat beroperasi secara andal serta memberikan manfaat bagi mobilitas dan konektivitas kawasan.
berikut beberap proyek kami:
1. Jembatan Kawasan Industri PT Indonesia Xin Hai Steel Structure – Cikarang

2. Desain Struktur Jembatan Kabel SKTM PT PLN Persero Tol Cimanggis – Cibitung – Bogor, Jabar


