WhatsApp
08132865264
Alamat
Desa Garon, RT.004 / RW.002, Kecamatan Kawedanan, Kabupaten Magetan, Jawa Timur – 63382
Kami berkomitmen memberikan layanan rekayasa yang mengutamakan keamanan struktur, efisiensi desain, dan kepatuhan standar teknik.
#KonsultanTeknikSipil
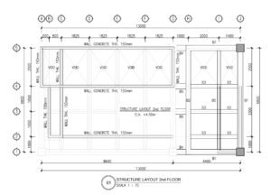
A) Desain Struktur Gedung Sekolah SDIT Insan Kamil Depok – Depok, Jawa Barat





B) Desain Struktur Gedung PT Bank Tabungan Negara Tbk, KC Kupang – Kota Kupang, Nusa Tenggara Timur
C) Desain dan Audit Struktur Gedung Sekolah SMP Nadwah Yayasan Ma’had Ummul Qura Al Islam – Sukabumi, Jawa Barat






D) Desain Struktur LED Videotrone Curve L Tower MRT Istora Mandiri – Kebayoran Baru, Jakarta Selatan
E) Desain Dinding Penahan Tanah Tower PLN Narogong – Bogor, Jawa Barat






F) Desain dan Analisis Mounting Antena Tower XL
G) Desain dan Analisis Struktur Ramp Rumah Sakit Kartika Cibadak – Kabupaten Sukabumi, Jawa Barat






H) Desain dan Analisis Struktur Hotel Richroom Jakarta – DKI Jakarta
I) Desain dan Analisis Struktur Kolam Renang Rumah Tinggal Bapak Suhermanto – Cilandak, Jakarta Selatan






J) Desain dan Analisis Struktur Hotel Villa A.R Bali – Kuta Selatan Badung, Bali
K) Desain Struktur Masjid Al Kastoeri – Pekanbaru, Riau






L) Desain Struktur Heliport Pulau Cina – Kepulauan Seribu, DKI Jakarta
M) PLN Tower Emergency Analysis – Bogor, Jawa Barat




N) Desain & Analisis Struktur Jembatan Kawasan Industri PT Indonesia Xin Hai Steel Structure, Cikarang – Jawa Barat
O) Desain & Analisis Struktur Jembatan Kabel SKTM PT PLN Persero Tol Cimanggis – Cibitung, Bogor – Jawa Barat


